Logo – Trebo AS

Pågående prosjekter

Møller
17 Leiligheter

Møllergata 13

  • Entrepriseform: Totalentreprise
  • Byggherre: TIMB Eiendom AS
  • Ferdigstillelse: Q2 2022
  • Størrelse: Oppføring av 17 leiligheter med p-kjeller
Møller
Møller
Møller2
Møller2
Mæøller4
Mæøller4
Næring Møller
Næring Møller
Møller
Møller
DJI 0505
DJI 0505
Skjermbilde 352
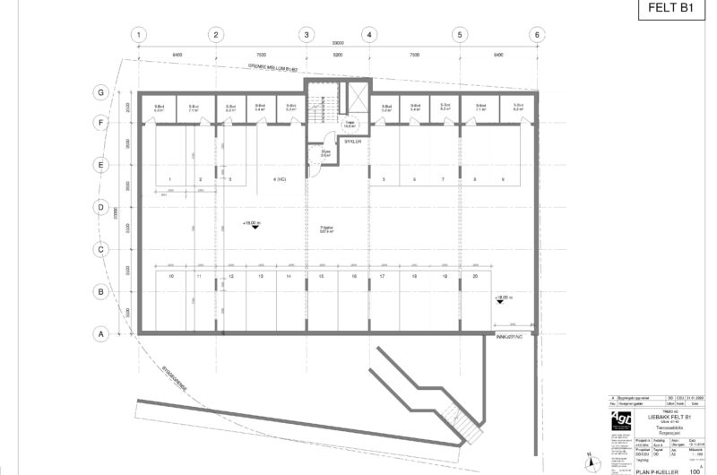
23 Leiligheter

Liebakk Panorama

  • Enterpriseform: Totalentreprise
  • Byggherre: Liebakk Eiendom AS
  • Ferdigstillelse: Q4 2022
  • Størrelse: Oppføring av 23 leiligheter med p-kjeller i første byggetrinn
Skjermbilde 372
Skjermbilde 372
Skjermbilde 369
Skjermbilde 369
Hjemmeside Liebakk 3 D HELE 1
Hjemmeside Liebakk 3 D HELE 1
Skjermbilde 370
Skjermbilde 370
Skjermbilde 369
Skjermbilde 369
Hjemmeside Liebakk B1 SKISSEUTKAST Side 1
Hjemmeside Liebakk B1 SKISSEUTKAST Side 1
13
Leilighetshotell

Tollbugata 10 og 12

  • Enterpriseform: Totalentreprise
  • Byggherre: Brække Eiendom
  • Ferdigstillelse: Q2 2022
  • Størrelse: Totalrenovering av to bygg som gjøres om til leilighetshotell med 45 rom
1114 2
1114 2
20210603 124414000 i OS
20210603 124414000 i OS
20210603 124354000 i OS
20210603 124354000 i OS
15
15
20210603 123003890 i OS
20210603 123003890 i OS
20210602 123323494 i OS
20210602 123323494 i OS

Utførte prosjekter

Hjemmeside 5
8-mannsbolig og 4-mannsbolig

Smedgata 16

  • Enterpriseform: Totalentreprise
  • Byggherre: TIMB Eiendom AS
  • Ferdigstilt: Mars 2020
  • Størrelse: Oppføring av 8-mannsbolig og en 4-mannsbolig
Hjemmeside 2
Hjemmeside 2
Hjemmeside 3
Hjemmeside 3
Hjemmeside 4
Hjemmeside 4
Hjemmeside 5
Hjemmeside 5
Hjemmeside 6
Hjemmeside 6
Hjemmeside
Hjemmeside
Hjemmeside
Renovering av eksisterende og oppføring av 5 nye leiligheter

Konnerudgata

  • Enterpriseform: Totalentreprise
  • Byggherrre: Jensen Eiendomsutvikling AS
  • Ferdigstillelse: Juni 2020
  • Størrelse: Renovering av eksisterende og oppføring av 5 nye leiligheter med utenomhus
Hjemmeside3
Hjemmeside3
Hjs2
Hjs2
IMG 2639
IMG 2639
Hjemmeside
Hjemmeside
Hjemmeside5
Hjemmeside5
IMG 3466
IMG 3466
Kan vi hjelpe deg?

En uforpliktende prat eller befaring?

Erlend
Salgsleder/kalkulatør

Erlend Heli