Logo – Trebo AS
TREBO HUS 07 hage2 r3
Markus

Trebo hus Markus er et romslig og moderne hus med store vindusflater som gir rikelig med lys. Dette, kombinert med åpen himling til mønet i stuen, gir det en svært god romfølelse.

TREBO HUS 07 hage r2

Trebo hus Markus har et stilrent uttrykk med stående kledning og listefritt rundt vinduene. Over garasjen blir det en stor flott terrasse. Inngangspartiet ligger på innsiden av veggelivet og med pardør bryter det stilfullt den store veggflaten.

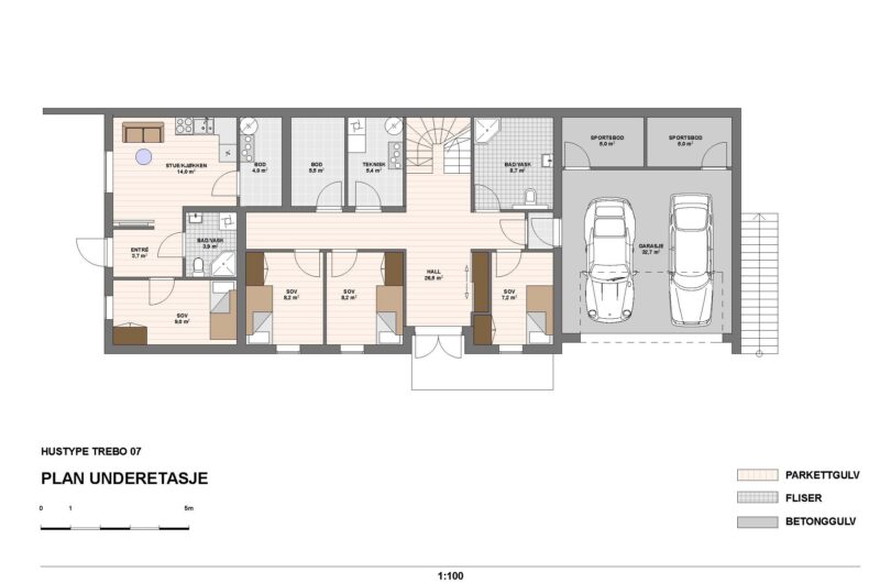
Huset er stort innvendig med en liten, men praktisk hybel. God bodplass ved vaskerom i underetasjen. Her kan du gå rett ut fra hallen inn i garasjen. I garasjen er det ytterligere to boder.

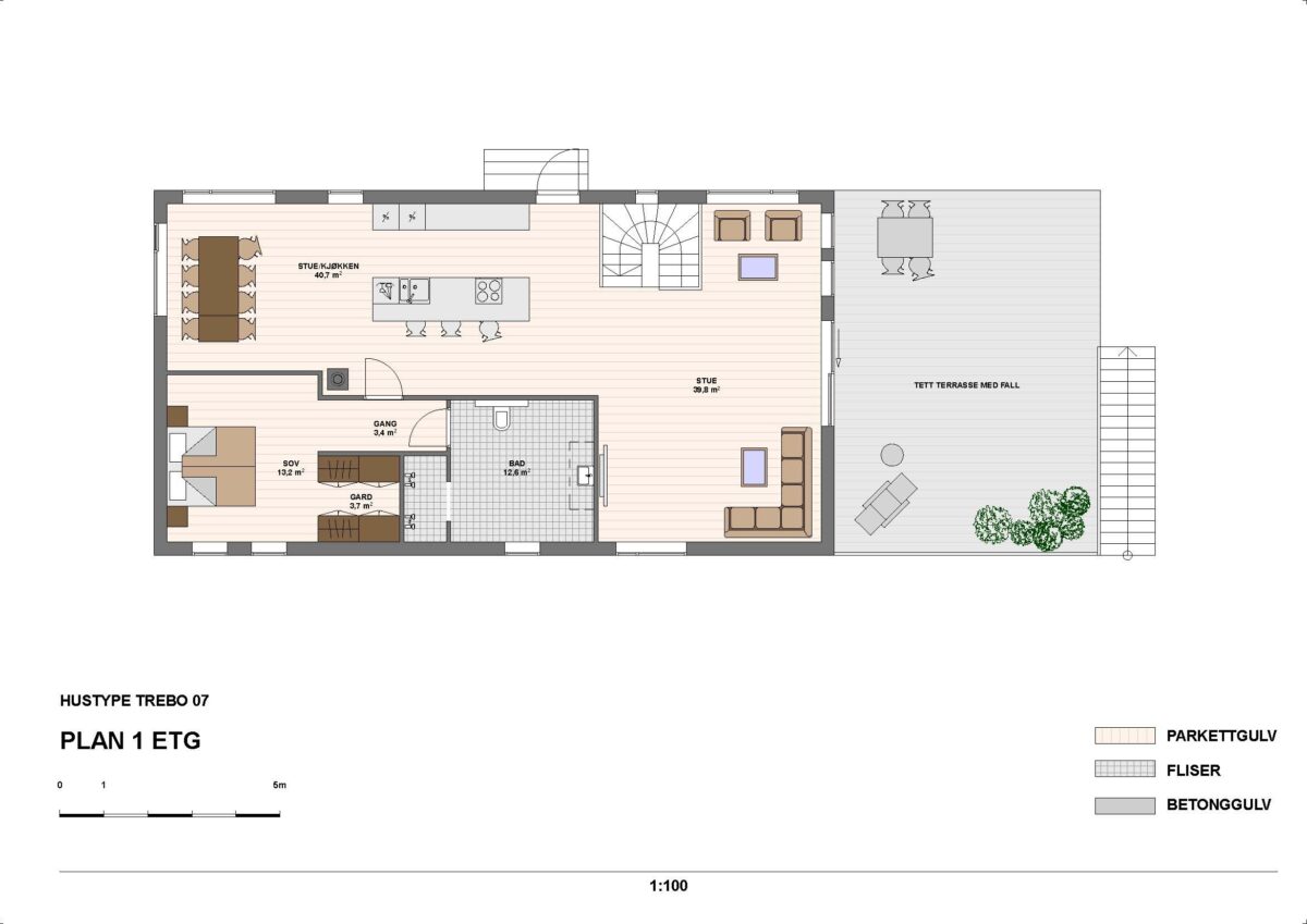
1. etasje. har stue og kjøkken uten vegger på hele flaten som er over 80 kvm. Det lagt opp til stor kjøkkenøy på denne romplanen med høyskap, kjøleskap og liknende mot veggen. Master bedroom har walk-inn garderobe og stort bad med eksklusivt dusjrom for to. Hvis man vil tegne om hybeldelen eller andre romløsninger lat det seg enkelt gjøre.

Hvis man heller ønsker inngang fra underetasjen, kan vi tegne inn gang mellom bad og soverom, eller skreddersy etter dine ønsker.

TREBO HUS 07 hage r2
TREBO HUS 07 hage r2
TREBO HUS 07 hage2 r3
TREBO HUS 07 hage2 r3
Trebo 07 Side 1
Trebo 07 Side 1
Trebo 07 Side 2
Trebo 07 Side 2
  • TERRENG: Skrått
  • BYA: 120,8 m²
  • P-ROM: 188 m²
  • BRA-HYBEL: 203,4 m²
  • ANTALL ETASJER: 2
  • ANTALL SOVEROM: 4